Your Ideal Home, Valued for Excellence – Discover Comfort, Quality, and Investment in Every Square Meter.

N$3,500,000
Property Details

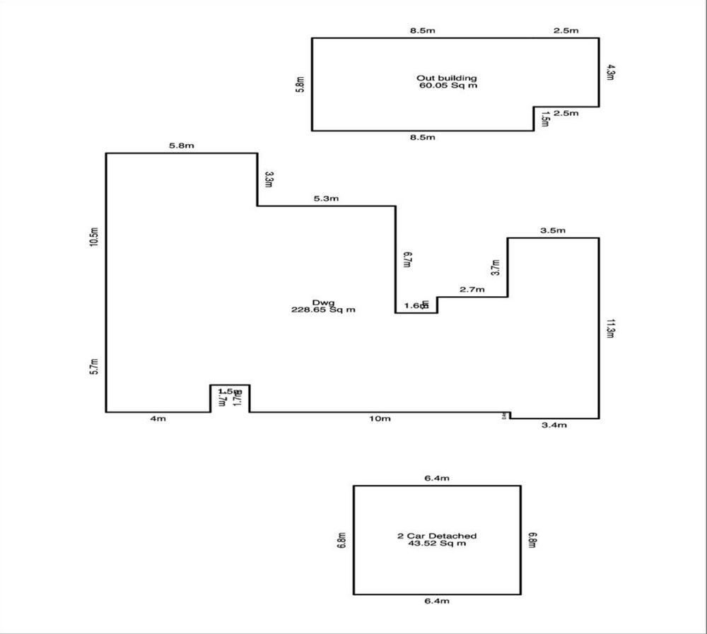
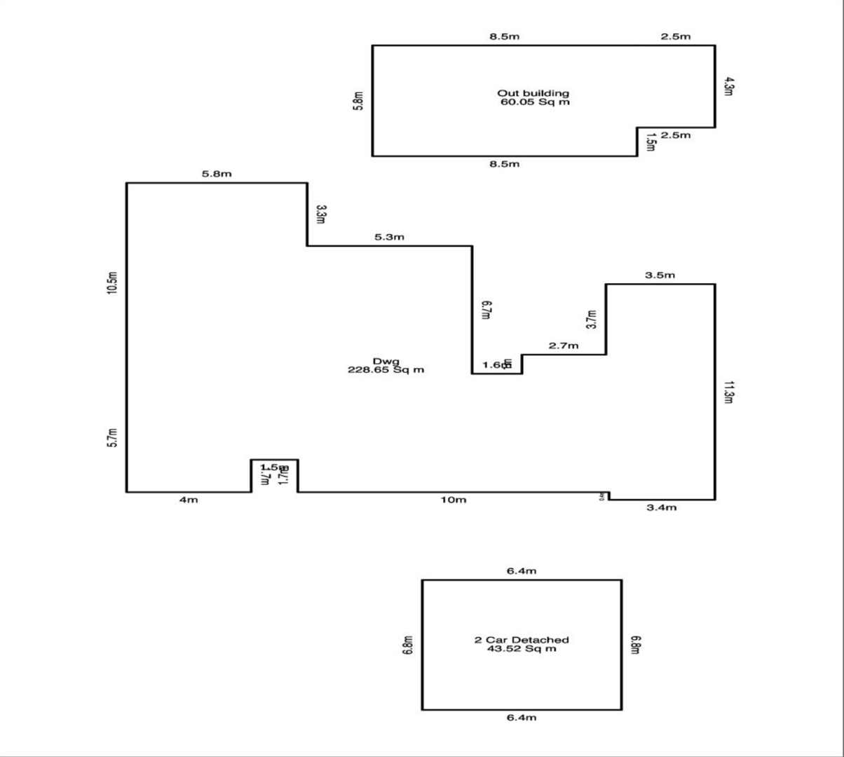
MAIN BUILDING 229 m

The main building consists of the following:

Entrance area

Lounge

Kitchen

Dining room

Study

Pantry

Three bedrooms

Bath-shower

Toilet

FLAT 60 m

The flat consists of the following:

Lounge

Kitchen

One bedroom

Shower-toilet

GARAGE 44 m

This garage consists of the following:

Garage - Double

Garage - Manual door

Property Features
Property Type
House
Land Size
1,125m²
Location
Make an enquiry
Interested in this property? Please fill in your details below, and we will contact you as soon as possible.
By clicking on "submit" you agree to our privacy policy.
Property Alerts
Receive email alerts for properties matching your criteria.